2468 Buckelew addition
Falls Church, Virginia 2003
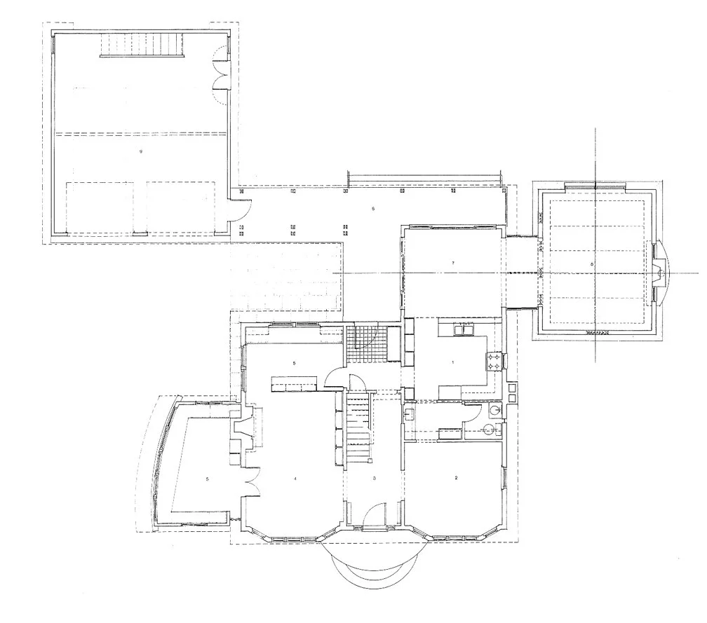
Owners of 1924 Dutch Colonial kit home desired additional space for large extended family gatherings and a means for aging in place. Situated on a two-acre parcel inside the Capital Beltway, the existing home had little to no visual connection with the surrounding landscape of mature tulip poplars.
Attempts to add more space directly onto the existing Dutch Colonial in the end were unsatisfactory and awkward. Inspired by the three-part composition of Jefferson’s Monticello, an alternative strategy was developed balancing the mass of the existing garage with a new great room that mimics a Southern kitchen house. A glass enclosed bridge connects the old with the new. Across the rear, an extended porch encloses informal dining; its L-shaped composition linking to the garage while forming a new at grade rear entry.
In the end, building adjacent to in lieu of adding on, proved highly successful. Not only was the character of the original house preserved, the new living room with its large windows and twelve foot ceilings emphatically connects landscape and home.
